0
fr
AF IMMOBILIER Agence
Télécharger la fiche

Studio 1 pièce(s) 29.87 m²

Tremblay-en-France (93290)
120 000 € Référence 735

A propos de ce bien

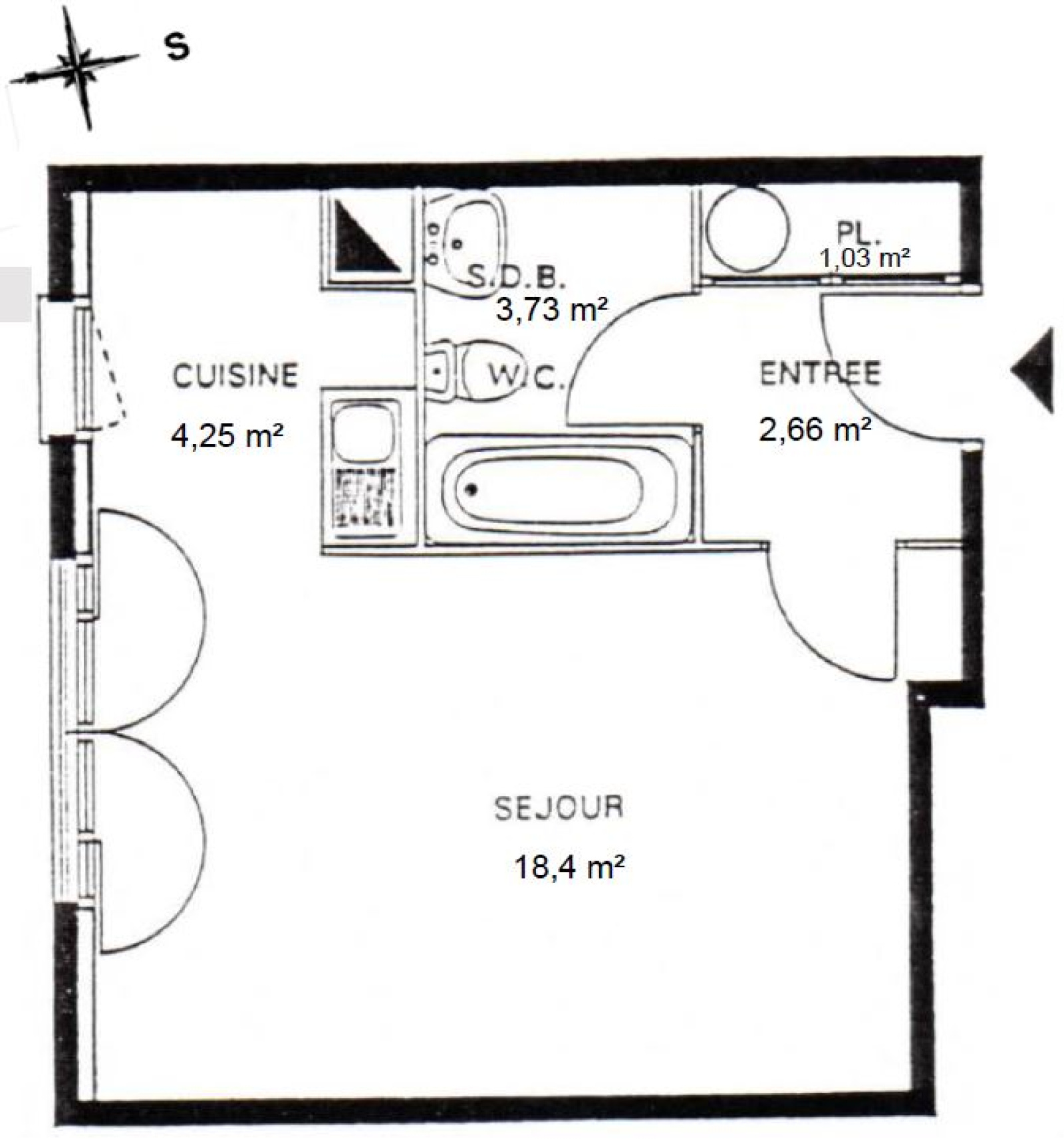
Situé au 4ᵉ et dernier étage d’un immeuble bien entretenu, ce studio d'environ 30m2 bénéficie d’un cadre de vie agréable dans un environnement calme à Tremblay-en-France.

Il offre une entrée avec placard intégré, une salle de bain avec WC, ainsi qu’un séjour en L de 18,40 m². Le coin cuisine avec fenêtre, légèrement séparé, permet une organisation agréable et fonctionnelle de l’espace de vie.

Situé dans une zone calme, il bénéficie d’une localisation pratique : 20 minutes à pied de la gare du Vert Galant et un accès rapide aux transports grâce aux bus desservant la gare en quelques minutes.

Une place de parking privative en sous-sol vient parfaire ce bien.

Idéal pour un premier achat ou un investissement locatif, alliant confort et praticité.


Les informations sur les risques auxquels ce bien est exposé sont disponibles sur le site Géorisques

Caractéristiques de ce bien

  • Surface 29,87 m²
  • séjour 29,87 m²
  • 1 salle(s) de bain
  • cuisine américaine (semi-équipée)
  • Chauffage individuel : radiateur (electrique)
  • 1 garage(s)
  • 4ème étage
  • interphone
  • accès handicapé

Diagnostics énergétiques

Consommation énergétique
A B C D E F G
Emission de gaz à effet de serre
A B C D E F G

Montant estimé des dépenses annuelles d'énergie de ce logement pour un usage standard est compris entre 540 € et 780 € . 2021 étant l'année de référence des prix de l'énergie utilisés pour établir cette estimation.

Informations financières

Prix de vente honoraires TTC inclus 120 000 €
Charges 91 €
Taxe foncière annuelle 856 €

Informations de copropriété

Copropriété Oui
Lot n° 110
Nombre de lots 111
Quote part annuelle des charges 1 090 €
Plan de sauvegarde Non
Statut du syndic Pas de procédure en cours

Autour du bien

  • Commerces et santé
  • Loisirs
  • Ecoles
  • Transports
  • Pratique

Calcul des mensualités

* Champs obligatoires