0
fr
AF IMMOBILIER Agence
Télécharger la fiche
Sous-compromis

Studio 1 pièce(s) 29.87 m²

Tremblay-en-France (93290)
108 000 € Référence 735.

A propos de ce bien

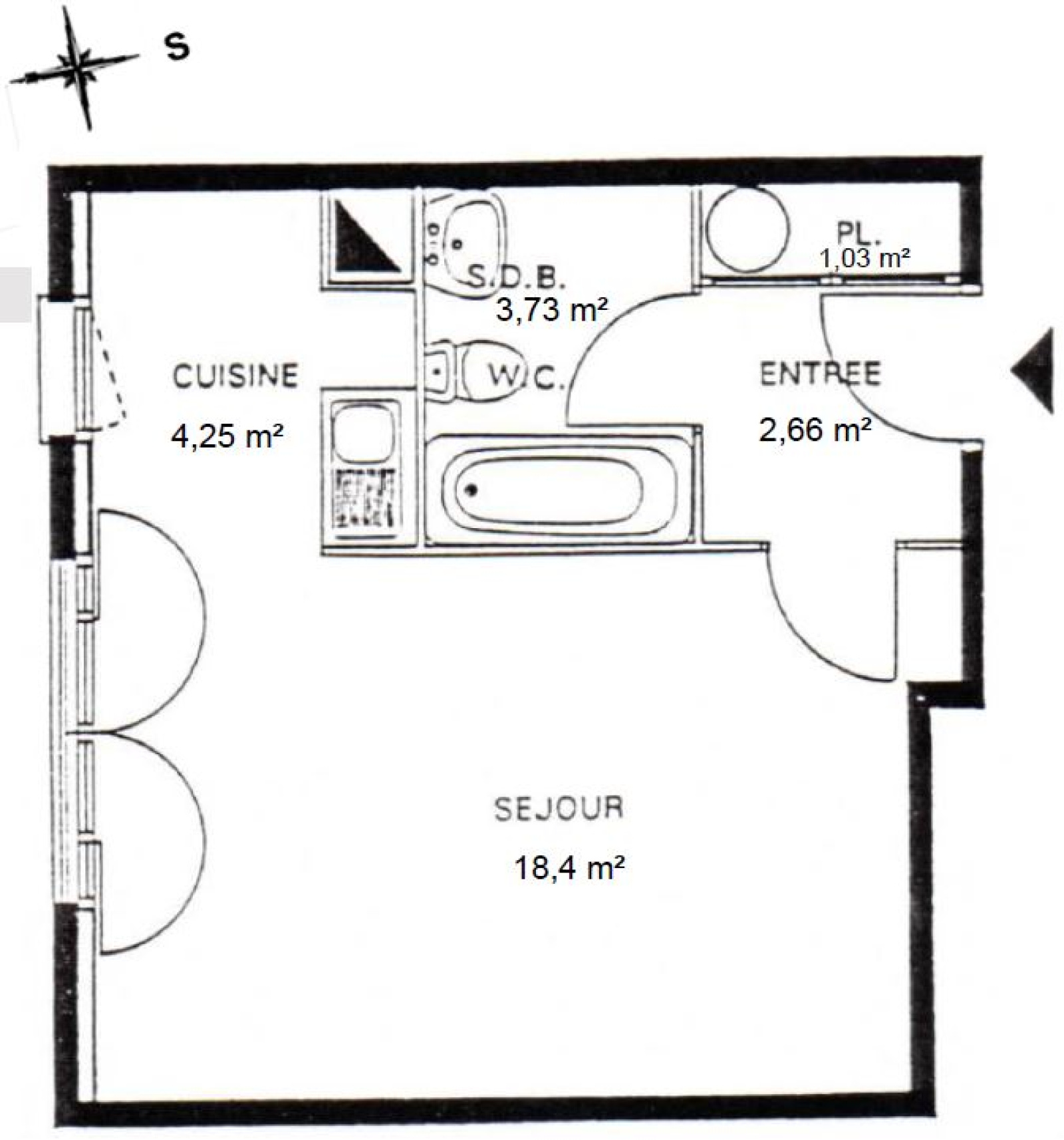
Situé au 4ᵉ et dernier étage d’un immeuble bien entretenu, ce studio d'environ 30m2 bénéficie d’un cadre de vie agréable dans un environnement calme à Tremblay-en-France.

Il offre une entrée avec placard intégré, une salle de bain avec WC, ainsi qu’un séjour en L de 18,40 m². Le coin cuisine avec fenêtre, légèrement séparé, permet une organisation agréable et fonctionnelle de l’espace de vie.

Situé dans une zone calme, il bénéficie d’une localisation pratique : 20 minutes à pied de la gare du Vert Galant et un accès rapide aux transports grâce aux bus desservant la gare en quelques minutes.

Une place de parking privative en sous-sol vient parfaire ce bien.

Idéal pour un premier achat ou un investissement locatif, alliant confort et praticité.

⚠️À compter du 1er janvier 2026, en raison des nouvelles réglementations (électricité et petites surfaces), le DPE de ce logement sera automatiquement reclassé en classe D. ⚠️


Les informations sur les risques auxquels ce bien est exposé sont disponibles sur le site Géorisques

Caractéristiques de ce bien

  • Surface 29,87 m²
  • séjour 29,87 m²
  • 1 salle(s) de bain
  • cuisine américaine (semi-équipée)
  • Chauffage individuel : radiateur (electrique)
  • 1 garage(s)
  • 4ème étage
  • interphone
  • accès handicapé

Diagnostics énergétiques

Consommation énergétique
A B C D E F G
Emission de gaz à effet de serre
A B C D E F G

Montant estimé des dépenses annuelles d'énergie de ce logement pour un usage standard est compris entre 540 € et 780 € . 2021 étant l'année de référence des prix de l'énergie utilisés pour établir cette estimation.

Informations financières

Prix de vente honoraires TTC inclus 108 000 €
Charges 91 €
Taxe foncière annuelle 856 €

Informations de copropriété

Copropriété Oui
Lot n° 110
Nombre de lots 111
Quote part annuelle des charges 1 090 €
Plan de sauvegarde Non
Statut du syndic Pas de procédure en cours

Autour du bien

  • Commerces et santé
  • Loisirs
  • Ecoles
  • Transports
  • Pratique

Calcul des mensualités

* Champs obligatoires